Prodaja – Trosobni stan – Novogradnja – Oporovec – 87m2

Donji Kraj, Zagreb, Croatia
Stan
3 Soba/Ureda
1 Kupaonica
87 m²

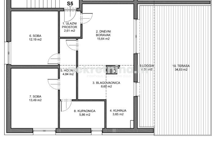
Na prodaju je moderan trosoban penthouse ukupne površine 87,11 m², smješten na drugom katu manje stambene zgrade novije gradnje (2015.) u mirnoj i slijepoj ulici u Oporovcu, Gornja Dubrava.

Stan se sastoji od ulaznog prostora, prostranog dnevnog boravka s blagovaonicom i kuhinjom, hodnika, dvije spavaće sobe, kupaonice te velike terase koja pruža lijep i otvoren pogled.

Nekretnina je potpuno namještena i uređena kvalitetnim materijalima, a zahvaljujući velikim otvorima i dobroj orijentaciji stan je vrlo svijetao i ugodan za boravak.

Lokacija je mirna i okružena prirodom – ulica je slijepa, s vrlo malo prometa, a iza zgrade se nalazi šuma. U blizini su svi potrebni sadržaji za svakodnevni život poput trgovina, škole, vrtića i javnog prijevoza.

Osnovne karakteristike:

  • površina: 87,11 m²
  • trosoban stan
  • velika terasa
  • dvije spavaće sobe
  • potpuno namješten
  • klima uređaj
  • energetski razred A+
  • 2 parkirna mjesta
  • zgrada iz 2015. godine
  • zadnja renovacija 2023.

Odlična nekretnina za miran obiteljski život, ali i kao dugoročna investicija.

Za dodatne informacije i dogovor oko razgledavanja
+385911222121
+38517710177
info@nekretnina.hr
nekretnina.hr
Ulica kralja Zvonimira 52

Detalji nekretnine:

ID: HI-15921
Vrsta nekretnine: Stan
Status nekretnine: Prodaja
Soba/Ureda: 3
Kupaonica: 1
Veličina prostora: 87 m²
Veličina nekretnine: 87
Godina izgradnje: 2015

Adresa nekretnine:

Dućani
Autobusno/tramvajske stanice
Restoran
Bolnica
Škola
Park
Donji Kraj, Zagreb, Croatia